収めて楽しむ、趣味広がるお家
「一つひとつ、丁寧に。思いが宿る家づくり。」をもとに、 趣味を楽しむ。暮らしを整える。無駄を省いて、満たされる住まいへ。 和蔵の家は、“ちょうどいい”を積み重ね、日常を豊かにするお家です。 本当に必要な空間を見直し、ガレージや収納にこだわった、無駄のない住まいを実現します。

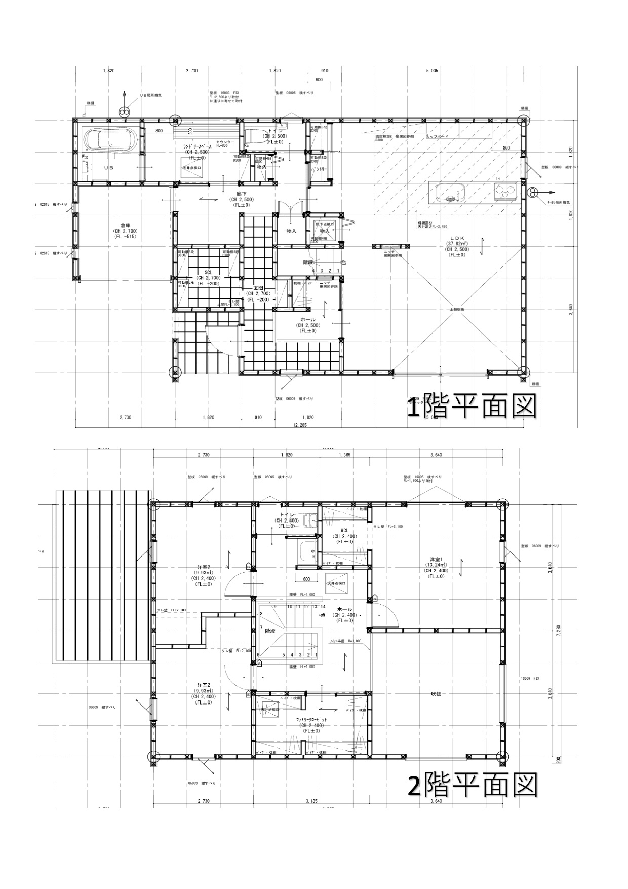
建物概要
| 会社名 | 和蔵株式会社 |
| 建物構造 | 木造2階建て |
| 工法 | 木造軸組工法 |
| 敷地面積 | 195.28㎡ 59.07坪 |
| 1階床面積 | 78.66㎡ 23.79坪 |
| 2階床面積 | 56.31㎡ 17.03坪 |
| 延べ床面積 | 134.97㎡ 40.82坪 |
| 最高高さ | 8.12m |
平面図


