自然のぬくもりに包まれ
家族もペットも心地よい木の家
「結婚、出産、お子様の自立、夫婦二人暮らしに戻るなど人生の節目に家作りを考えている方、また、愛するペットと安心して共に暮らしていく住まいはどうしたらいいのだろうと迷っている方に、「木の良さと木の温もりを活かし、コンパクトでも機能的で快適なお家」をご提案します。

建物概要
| 会社名 | 株式会社サンウッド |
| 建物構造 | 木造平屋建て |
| 工法 | 在来工法(軸組工法) |
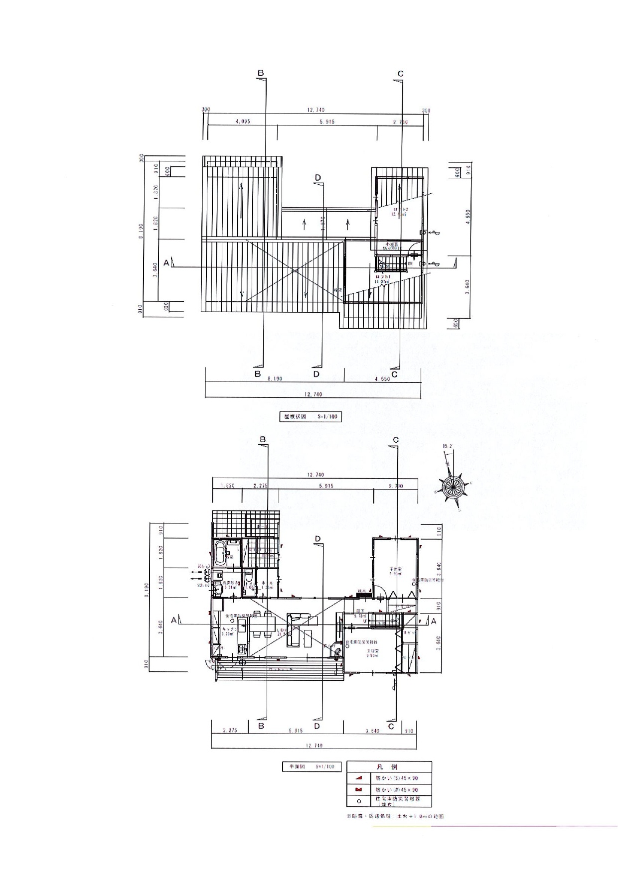
| 床面積 | 85.08㎡(25.73坪)※ロフト含む |
平面図


自然のぬくもりに包まれ
家族もペットも心地よい木の家
「結婚、出産、お子様の自立、夫婦二人暮らしに戻るなど人生の節目に家作りを考えている方、また、愛するペットと安心して共に暮らしていく住まいはどうしたらいいのだろうと迷っている方に、「木の良さと木の温もりを活かし、コンパクトでも機能的で快適なお家」をご提案します。
***

