おうちに帰ろ・帰りたくなる家
『ただいま』おかえり。今日もおつかれさま。誰にも気兼ねなく、あなたらしく過ごせる家を。リビングで大の字になったり、お気に入りの音楽を聴いたり。帰るのが楽しみになる、そんな暮らしがここにから始まります。

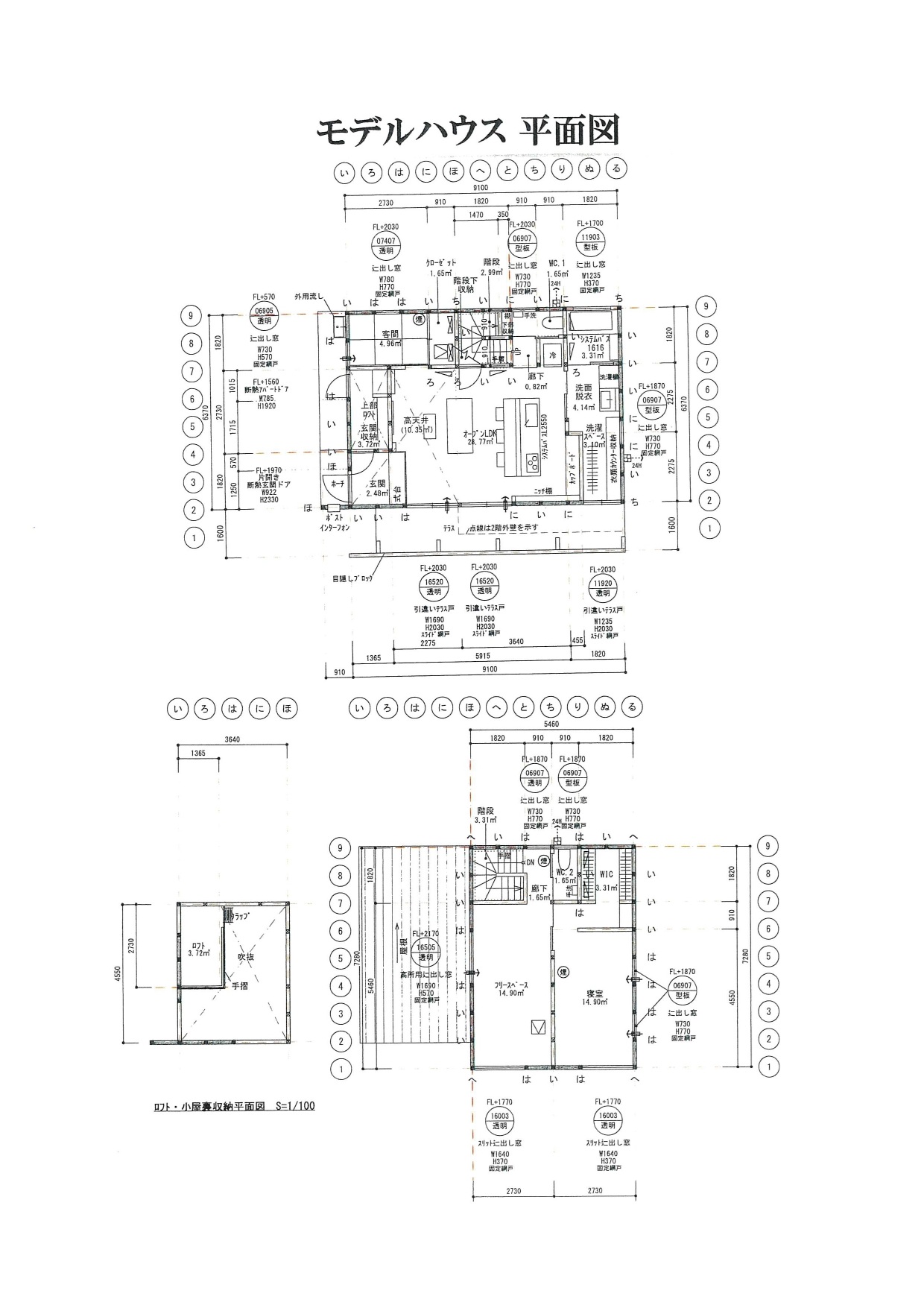
建物概要
| 会社名 | 株式会社小田原工務店 |
| 建物構造 | 木造2階建て |
| 工法 | 木造軸組在来工法(ピン工法) |
| 1階面積 | 57.96平方メートル(17.5坪) |
| 2階面積 | 39.74平方メートル(12坪) |
| ロフト面積 | 3.72㎡(1坪) |
| 延べ床面積 | 101.42㎡(30.7坪) |
| ガレージ建築面積 | 31.85㎡(9.6坪) |


平面図



株式会社小田原工務店

