なんでもない一日が楽しくなる!
開放的で大きなワンルームのLDKには、いつも家族全員集合! パパもママも子どもたちも、家で過ごす時間が豊かになる。 時間の経過とともに変化する、家族の団欒スタイルに寄り添う間取りと、家族の成⾧を楽しみながら愛着 のわく『我が家』に! そんな住み手の個性が映えてくるお家です。

建物概要
| 会社名 | 株式会社伊藤工務店 |
| 建物構造 | 木造2階建て |
| 工法 | 在来工法 |
| 敷地面積 | 178.76㎡(54.07坪) |
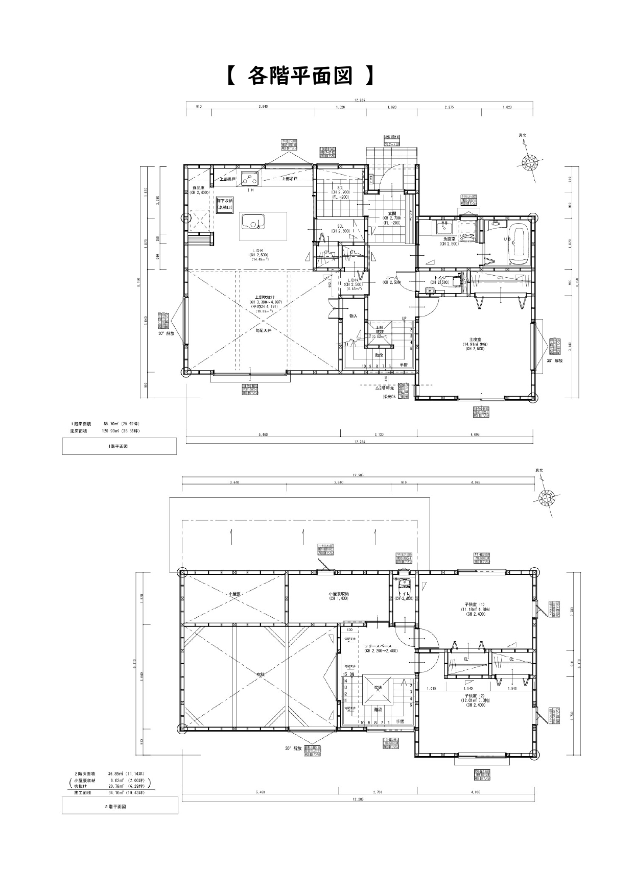
| 1階床面積 | 84.05㎡(25.42坪) |
| 2階床面積 | 36.85㎡(11.14坪) |
| 延べ床面積 | 120.90㎡(36.57坪) |
| 最高高さ | 8.12m |
| 土台 | 桧(KD材)105×105 |
| 柱 | 杉(KD材)105×105 |
| 床下換気 | 基礎パッキン工法 |
| 断熱材 | 吹付け硬質ウレタンフォーム(壁・屋根) ※高い断熱性能・気密性・防湿性・防耐火性能 |
| 屋根 | ゴムアスルーフィング(防水シート) +ガルバリウム鋼板タテ平葺き |
| 外壁 | EXボード9.5mm(耐力面材) 耐火・防カビ・防水性能 |
| 外部サッシ | 樹脂サッシ YKKap |
平面図


